För vackra
& vilsamma
trädgårdar
Med personlig och genomtänkt design gör vi din trädgård till en vacker och lättskött miljö att njuta av genom alla årstider.
1. Gräv där du står
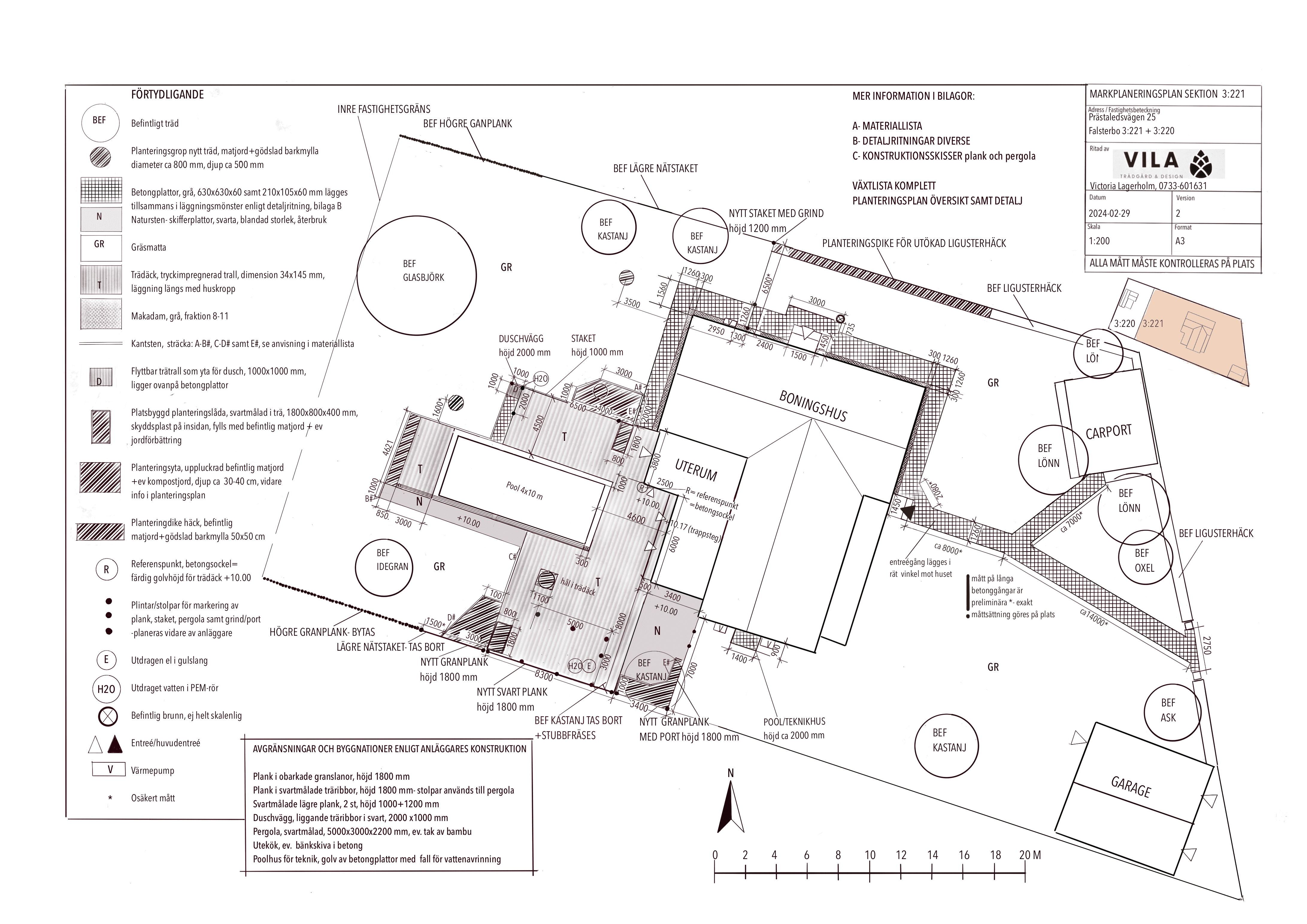
Vilka behov och önskemål finns och vilka förutsättningar har just din trädgård? Det kan vara många praktiska faktorer att ta hänsyn till så som odlingszon, jordmån, budget, tidsram , stil mm. Gör en tydlig kartläggning av hur trädgården fungerar idag, vad som behöver förnyas och vad som verkligen kan komma att fungera i din trädgård. En genomtänkt grund och en bra plan att utgå ifrån gör skapandet och anläggningen både enklare och billigare. Ja nog finns det mycket att tänka på och var börjar man? Vi på VILA kan underlätta, kartlägga och hjälpa till med planeringen av ditt trädgårdsprojekt.
3. Välj växter som gör jobbet
Vilka växter är lättskötta och kan passa i din trädgård? Vad finns det för jord och hur ser markförhållandena ut? Är det sol eller skugga? Hur blåsigt är det? Vilka växter passar ihop och hur kommer de utvecklas med tiden? Att välja rätt växt sparar både tid och energi och en växt som trivs blir ju dessutom vackrare. Passar det med marktäckare eller någon vintergrön buske kanske? Olika delar av trädgården kan ha olika förutsättningar och det finns ju så mycket fina växter att välja på... Vi på VILA kan hjälpa dig att göra smarta, vackra och hållbara växtval.
4. Låt naturen ha sin gång
Att skapa en hälsosam trädgård med biologisk mångfald ger många fördelar för både djur och natur. En frodig och artrik trädgård lockar till sig många nyttodjur och skapar en balans och ett naturligt växtskydd i trädgården. Välj och plantera växter med omsorg för att förebygga skadedjur och sjukdomar. Att använda marktäckande- perenner och buskar kan underlätta skötseln och att städa "lagom" och tex. låta växtdelar ligga kvar i rabatten och förmultna ger god jordförbättring. Ett förhållningssätt att tex. se på både mossa, kirskål och maskrosor som något vackert och nyttigt gör att trädgården kan kännas mer vilsam. Ja för visst gillar vi alla att få vila och återhämta oss ivår trädgård? Vi på VILA kan hjälpa dig att skapa, sköta samt ge tips för en hälsosam och naturlig vacker trädgård.









